Domů Nábytek Koupelna Sanitární výrobky Záchody GEBERIT - Duofix Set předstěnové instalace, klozetu Gaia a sedátka softclose, tlačítko Sigma30, chrom/chrom mat SANI11CA1133B

GEBERIT - Duofix Set předstěnové instalace, klozetu Gaia a sedátka softclose, tlačítko Sigma30, chrom/chrom mat SANI11CA1133B

Dostupnost do 2 týdnů
Výrobce GEBERIT
EAN 4025410741837
11 729 Kč
Do obchodu
Svet-koupelny.cz

Popis produktu

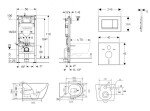
Set obsahuje předstěnový instalační modul Geberit Duofix se splachovací nádržkou pod omítku  keramický závěsný klozet kielle Gaia se sedátkem SoftClose ovládací tlačítko Geberit Sigma30 pro 2-činné splachování soupravu pro tlumení hluku Předstěnový instalační modul Duofix pro závěsné WC se splachovací nádržkou Sigma 12 cm pro konstrukce prováděné suchým procesem k montáži do předstěnových instalací částečně vysokých nebo vysokých na výšku místnosti k montáži do instalačních stěn vysokých na výšku místnosti k montáži do systémových stěn Geberit Duofix částečně vysokých nebo vysokých na výšku místnosti pro závěsná WC s připojovacími rozměry podle EN 33 a přesahem do 70 cm pro 1-činné, 2 -činné nebo Start/Stop splachování pro tloušťky podlahy 0–25 cm Vlastnosti samonosný rám s nanesenou práškovou barvou rám připravený pro podpěry u WC keramik s malou opěrnou plochou podpěry pozinkované podpěry s protiskluzovou úpravou patní desky otočné, vhodné pro montáž do U-profilů UW 50 a UW 75 připojovací koleno pro montáž bez nářadí v různých hloubkách, rozsah nastavení 45 mm splachovací nádržka pod omítku izolovaná proti orosování u nastavení z výroby je možné okamžité dodatečné spláchnutí montážní a servisní práce na splachovací nádržce pod omítku bez nářadí přívod vody vzadu nebo nahoře uprostřed kryt pro hrubou montáž pro servisní otvor chrání před vlhkostí a nečistotami kryt pro hrubou montáž pro servisní otvor s možností zkrácení vybaven trubkovou chráničkou pro přívodní potrubí k připojení sprchovacích WC Geberit AquaClean s možností upevnění pro přívod elektřiny Technické údaje tlak při průtoku: 10-1000 kPa maximální teplota vody: 25 °C splachovací množství, nastavení ve výrobě: 6 a 3 l velké splachovací množství, rozsah nastavení: 4 / 4.5 / 6 / 7.5 l malé splachovací množství, rozsah nastavení: 2-4 l výpočtový průtok: 0.09 l/s minimální přetlak pro výpočtový průtok: 10 kPa Obsah dodávky přívod vody R 1/2", vhodný pro MF, s integrovaným rohovým ventilem a ručním ovládacím kolečkem kryt pro hrubou montáž pro servisní otvor připojovací souprava pro WC, Ø 90 mm připojovací koleno 90° z PE-HD, Ø 90 mm přechodka z PE-HD, Ø 90 / 110 mm upevňovací materiál Závěsné WC Gaia  barva: bílá rozměry: 360 x 525 mm Rimless bezokrajové provedení skryté upevnění hluboké splachování splachovací objem 4/6 l WC sedátko barva: bílá s funkcí pomalého sklápění SoftClose lehce odnímatelné pro snadnou údržbu Ovládací tlačítko Sigma30, pro 2-činné splachování k ovládání splachování u splachovacích nádržek pod omítku Geberit Sigma ovládání zepředu tyčky tlačítka zvukově izolované, rychlé nastavení bez nářadí rozměry: 246 x 164 mm materiál: plast barva provedení: deska pochromovaná lesklá, designový proužek matný chrom ovládací síla: < 20 N obsahuje: upevňovací rámeček, 2 stavitelné úchytky, 2 tyčky tlačítka Protihluková sada pro závěsné WC nebo závěsný bidet pro montáž keramiky se vzdáleností upevnění 18 cm nebo 23 cm přerušuje přenos hluku u WC a bidetu materiál: polyetylén-pěna obsahuje: 1x zvukově izolační vložku, 2x podložku