Domů Nábytek Koupelna Sanitární výrobky Záchody GEBERIT - Duofix Set předstěnové instalace, klozetu Oudee Vortex a sedátka softclose, tlačítko Sigma01, černá SANI11CA5145

GEBERIT - Duofix Set předstěnové instalace, klozetu Oudee Vortex a sedátka softclose, tlačítko Sigma01, černá SANI11CA5145

Dostupnost do 2 týdnů
Výrobce GEBERIT
EAN 4067116321159
10 283 Kč
Do obchodu
Svet-koupelny.cz

Popis produktu

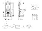
Set obsahuje předstěnový instalační modul Geberit Duofix se splachovací nádržkou pod omítku  keramický závěsný klozet kielle Oudee se sedátkem SoftClose ovládací tlačítko Geberit Sigma01 pro 2-činné splachování soupravu pro tlumení hluku Předstěnový instalační modul Duofix pro závěsné WC se splachovací nádržkou Sigma 12 cm pro konstrukce prováděné suchým procesem k montáži do předstěnových instalací částečně vysokých nebo vysokých na výšku místnosti k montáži do instalačních stěn vysokých na výšku místnosti k montáži do systémových stěn Geberit Duofix částečně vysokých nebo vysokých na výšku místnosti pro závěsná WC s připojovacími rozměry podle EN 33:2011 pro závěsná WC s vyložením do 62 cm pro 1-činné, 2 -činné nebo Start/Stop splachování pro tloušťky podlahy 0–20 cm Vlastnosti a technické údaje samonosný rám s nanesenou práškovou barvou rám s vrtanými otvory Ø 9 mm pro upevnění do dřevěné konstrukce rám připravený pro podpěry u WC keramik s malou opěrnou plochou podpěry pozinkované, nastavitelné 0–20 cm, s protiskluzovou úpravou patní desky otočné hloubka patní desky vhodná k montáži do U profilů UW 50 a UW 75 a do systémových profilů Geberit Duofix připojovací koleno pro montáž bez nářadí v různých hloubkách, rozsah nastavení 45 mm upevnění připojovacího kolena zvukově izolované splachovací nádržka pod omítku s ovládáním zepředu, izolovaná proti orosování u nastavení z výroby je možné okamžité dodatečné spláchnutí montážní a servisní práce na splachovací nádržce pod omítku bez nářadí přívod vody vzadu nebo nahoře uprostřed kryt pro hrubou montáž pro servisní otvor chrání před vlhkostí a nečistotami, s možností zkrácení vybaveno trubkovou chráničkou pro přívodní potrubí k připojení sprchovacích WC Geberit AquaClean s možností upevnění pro přívod elektřiny tlak při průtoku: 10-1000 kPa maximální teplota vody: 25 °C splachovací množství, nastavení ve výrobě: 6 a 3 l velké splachovací množství, rozsah nastavení: 4.5 / 6 / 7.5 l malé splachovací množství, rozsah nastavení: 3-4 l výpočtový průtok: 0.11 l/s minimální přetlak pro výpočtový průtok: 50 kPa Rozsah dodávky přívod vody R 1/2", vhodný pro MF, s integrovaným rohovým ventilem a ručním ovládacím kolečkem kryt pro hrubou montáž pro servisní otvor 2 ochranné zátky připojovací souprava pro WC, Ø 90 mm připojovací koleno 90° z PE-HD, Ø 90 mm přechodka z PE-HD, Ø 90 / 110 mm 2 závitové tyče M12 upevňovací materiál Závěsné WC Vortex Rimless - bezokrajové provedení, zajišťuje dokonalé očištění toalety pomocí vodního víru barva: bílá rozměry: 360 x 525 mm skryté upevnění hluboké splachování splachovací objem 4/6 l WC sedátko s funkcí pomalého sklápění SoftClose barva: bílá EasyLock lehce odnímatelné pro snadnou údržbu Ovládací tlačítko Sigma01, pro 2 množství splachování k ovládání splachování u splachovacích nádržek pod omítku Geberit Sigma ovládání zepředu tyčky tlačítka zvukově izolované, rychlé nastavení bez nářadí rozměry: 246 x 164 mm materiál: plast barva: černá ovládací síla < 20 N Obsah dodávky upevňovací rámeček 2 stavitelné úchytky 2 tyčky tlačítka Protihluková sada pro závěsné WC nebo závěsný bidet pro montáž keramiky se vzdáleností upevnění 18 cm nebo 23 cm přerušuje přenos hluku u WC a bidetu materiál: polyetylén-pěna obsahuje: 1x zvukově izolační vložku, 2x podložku