Domů Nábytek Koupelna Sanitární výrobky Záchody GROHE - Rapid SL Set předstěnové instalace, klozetu, sedátka SoftClose a tlačítka Arena Cosmopolitan, alpská bílá SANI11BB3120

GROHE - Rapid SL Set předstěnové instalace, klozetu, sedátka SoftClose a tlačítka Arena Cosmopolitan, alpská bílá SANI11BB3120

Dostupnost více než měsíc
Výrobce GROHE
EAN 4005176467738
10 249 Kč
Do obchodu
Svet-koupelny.cz

Popis produktu

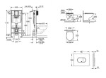
Kompletní WC set obsahuje podomítkový modul Rapid SL závěsné WC Bau Ceramic, s technologií Rimless WC sedátko, s technologií SoftClose horizontální splachovací tlačítko Arena Cosmopolitan, alpská bílá Instalační prvek Rapid SL pro závěsné WC splachovací nádrž GD 2 stavební výška 1,13 m pro předstěnovou montáž nebo montáž do lehké příčky ocelový rám, práškové lakování, samonosný pro obložení sádrokartonem, kompletně předmontováno pevné objektové přípojky pro jednotlivou montáž nebo montáž na kolejnici rychlé nastavení, uzamykatelné upevňovací materiál certifikováno TÜV 2 úchyty pro WC upevnění keramiky - rozteč šroubů 180/230 mm WC keramika s plochou menší než 205 mm vyžaduje dodatečné příslušenství 38 779 000 odpadní koleno Ø 90 mm hloubkově nastavitelné redukce Ø 90/110 mm přívodní a odpadní souprava splachovací nádrž 6 - 9 l (nastaveno z výroby na 6 - 3 l) pneumatický odtokový ventil nabízí 3 režimy chodu:2-činné splachování, start/stop a nebo nepřerušitelné (pouze start) přívod vody zleva / zprava nebo zezadu skupina armatur I - nízká hlučnost izolováno od kondenzující vody přípojka vody DN 15 s integrovaným rohovým ventilem a šroubovým spojem bez použití nářadí pro instalaci není třeba nářadí kontrolní hřídele včetně ochrany během fáze výstavby pro vertikální nebo horizontální použití splachovacích tlačítek včetně nástěnných držáků 38 558 00M pro montáž na stěnu Závěsné WC s bezokrajovou konstrukcí - rimless barva: alpská bílá materiál: glazovaná hladká keramika rozměry: 531 x 368 x 373 mm (H/Š/V) hluboké splachování zadní odpad objem spláchnutí 3/6 l WC sedátko s funkcí pomalého sklápění SoftClose materiál: duroplast panty z nerezové oceli snadná demontáž - upevnění shora Ovládací tlačítko Arena Cosmopolitan barva: alpská bílá pro 2-činné splachování a nebo funkci start/stop pro pneumatický odtokový ventil AV1 horizontální montáž rozměr: 156 x 197 mm materiál: ABS GROHE Water Saving – méně vody, dokonalý průtok pro kombinaci s nádržkami Rapid SL a Uniset pro použití s Rapid SLX nutno objednat také revizní šachtu