Domů Nábytek Koupelna Sanitární výrobky Záchody GROHE - Rapid SL Set předstěnové instalace, klozetu, sedátka SoftClose a tlačítka Skate Cosmopolitan, kartáčovaný Cool Sunrise SANI11BB4136

GROHE - Rapid SL Set předstěnové instalace, klozetu, sedátka SoftClose a tlačítka Skate Cosmopolitan, kartáčovaný Cool Sunrise SANI11BB4136

Dostupnost více než měsíc
Výrobce GROHE
EAN 4005176467738
17 582 Kč
Do obchodu
Svet-koupelny.cz

Popis produktu

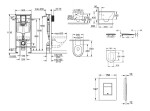
Kompletní WC set obsahuje podomítkový modul Rapid SL závěsné WC Essence, s technologií Rimless WC sedátko, s technologií SoftClose splachovací tlačítko Skate Cosmopolitan, kartáčovaný Cool Sunrise Instalační prvek Rapid SL pro závěsné WC splachovací nádrž GD 2 stavební výška 1,13 m pro předstěnovou montáž nebo montáž do lehké příčky ocelový rám, práškové lakování, samonosný pro obložení sádrokartonem, kompletně předmontováno pevné objektové přípojky pro jednotlivou montáž nebo montáž na kolejnici rychlé nastavení, uzamykatelné upevňovací materiál certifikováno TÜV 2 úchyty pro WC upevnění keramiky - rozteč šroubů 180/230 mm WC keramika s plochou menší než 205 mm vyžaduje dodatečné příslušenství 38 779 000 odpadní koleno Ø 90 mm hloubkově nastavitelné redukce Ø 90/110 mm přívodní a odpadní souprava splachovací nádrž 6 - 9 l (nastaveno z výroby na 6 - 3 l) pneumatický odtokový ventil nabízí 3 režimy chodu:2-činné splachování, start/stop a nebo nepřerušitelné (pouze start) přívod vody zleva / zprava nebo zezadu skupina armatur I - nízká hlučnost izolováno od kondenzující vody přípojka vody DN 15 s integrovaným rohovým ventilem a šroubovým spojem bez použití nářadí pro instalaci není třeba nářadí kontrolní hřídele včetně ochrany během fáze výstavby pro vertikální nebo horizontální použití splachovacích tlačítek včetně nástěnných držáků 38 558 00M pro montáž na stěnu Závěsný klozet pro podomítkové nádrže hluboké splachování záchodová mísa bez okrajového splachovacího kruhu (rimless) zadní odpad objem spláchnutí 3/4.5 l včetně montážní sady glazovaná hladká keramika barva: alpská bílá s povrchovou úpravou PureGuard WC sedátko barva: alpská bílá materiál: duroplast rozměr: 361 x 446 x 46 mm (Š/D/V) s technologií SoftClose odnímatelné, snadná demontáž upevnění shora panty z nerezové oceli včetně montážní sady Ovládací tlačítko Skate Cosmopolitan barva: kartáčovaný Cool Sunrise rozměr: 156 x 197 x 12 mm materiál: ABS povrchová úprava GROHE Long-Life pro 2-činné splachování nebo funkci start/stop pro pneumatický odtokový ventil AV1 GROHE Water Saving – méně vody, dokonalý průtok