Domů Nábytek Koupelna Sanitární výrobky Záchody GROHE - Uniset Set předstěnové instalace, klozetu, sedátka SoftClose a tlačítka Skate Cosmopolitan, alpská bílá SANI15BB3101

GROHE - Uniset Set předstěnové instalace, klozetu, sedátka SoftClose a tlačítka Skate Cosmopolitan, alpská bílá SANI15BB3101

Dostupnost do 2 týdnů
Výrobce GROHE
EAN 4005176467738
9 340 Kč
Do obchodu
Svet-koupelny.cz

Popis produktu

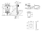
Kompletní WC set obsahuje podomítkový modul Uniset závěsné WC Bau Ceramic, s technologií Rimless WC sedátko, s technologií SoftClose splachovací tlačítko Skate Cosmopolitan, alpská bílá Uniset Modul pro WC, splachovací nádrž GD 2 odhlučněný EPS-modul pro obezdění 830 x 470 x 130 mm kolejnicový adaptér pro upevnění modulu pro jednotlivou montáž nebo montáž na kolejnici nástěnná kolejnice s upevňovacím materiálem pro jednotlivou montáž 2 úchyty pro WC rozteč šroubů 180/230 mm upevnění keramiky odpadní koleno Ø90 mm hloubkově nastavitelné redukce Ø90/110 mm přívodní a odpadní souprava splachovací nádrž 6 - 9 l nastaveno z výroby na 6 l - 3 l pneumatický odtokový ventil nabízí 3 režimy chodu: 2-činné splachování, anebo start/stop a nebo nepřerušitelné (pouze start) možnost dopojení přívodu vody zleva/zprava/zezadu nebo shora skupina armatur I - nízká hlučnost izolováno od kondenzující vody přípojka vody DN 15 s integrovaným rohovým ventilem a šroubovým spojem bez použití nářadí pro vertikální nebo horizontální použití splachovacích tlačítek Závěsné WC s bezokrajovou konstrukcí - rimless barva: alpská bílá materiál: glazovaná hladká keramika rozměry: 531 x 368 x 373 mm (H/Š/V) hluboké splachování zadní odpad objem spláchnutí 3/6 l WC sedátko s funkcí pomalého sklápění SoftClose materiál: duroplast panty z nerezové oceli snadná demontáž - upevnění shora Ovládací tlačítko Skate Cosmopolitan barva: alpská bílá rozměr: 156 x 197 x 12 mm materiál: ABS povrchová úprava GROHE Long-Life pro 2-činné splachování nebo funkci start/stop pro pneumatický odtokový ventil AV1 GROHE Water Saving – méně vody, dokonalý průtok