Madlo HARVIA dlouhé vertikální TW osika CSAZ047L
2 359 Kč
od Crystalpooleshop.cz
Desky na lavice olše THERMOWOOD 28x90x2400mm (4ks/bal),SHP CL-TWAL24_28L
2 611 Kč
od Crystalpooleshop.cz
Náhradní sklo do saunových dveří HARVIA 9x21, satinované CD92105L
14 509 Kč
od Crystalpooleshop.cz
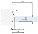
Pant pro dveře se dřevěným rámem, celoskleněné (do zárubně), Abloy šedý CFS159L
866 Kč
od Crystalpooleshop.cz